DREAM SF REAL ESTATE INC. CalBRE # 10923147. info@dreamsf.com
DREAM SF REAL ESTATE CA DRE# 00546425 info@dreamSF.com
351 Union St. San Francisco CA
Rented




















A sunny three bedroom full floor flat located two blocks above Grant St., one block from the apex of Telegraph Hill. Two car garage parking is included in the rent.
Details
Gracious full floor flat located two blocks above Grant St., one block from the apex of Telegraph Hill.
Two car garage parking is included in the rent.
The building is a two unit Victorian.
This is a corner property with windows in every room.
The flat was recently remodeled.
Just installed: a new hardwood floor in the kitchen, new carpet throughout, a new dishwasher and a new washer and a new dryer for the exclusive use of this flat.
The building retains its Victorian sensibility coupled with modern renovation design- opening the floor plan to light and spaciousness.
Part of the Victorian flavor derives from 5 vintage stained glass windows.
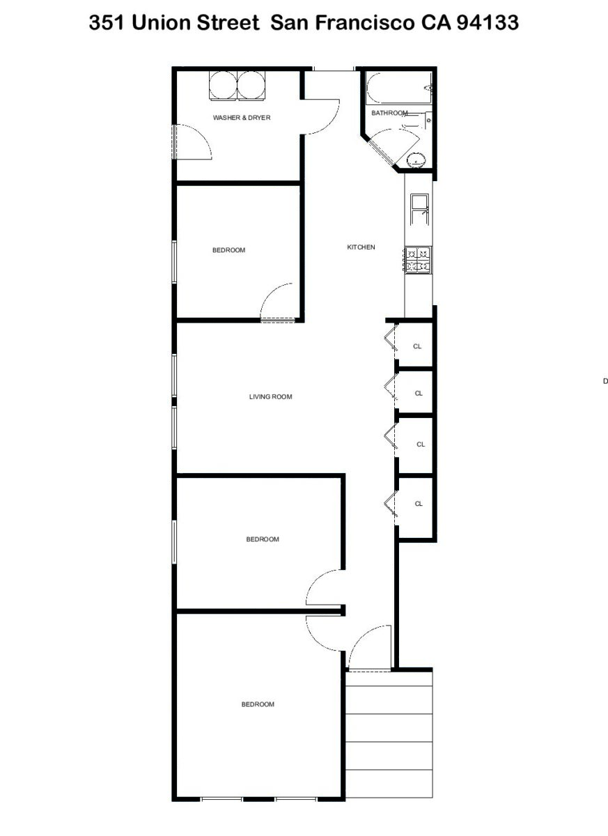
Approximate Room Measurements:
Living Room:
11′ x 16′
Bedrooms:
10′ x 12′
12′ x 14′
9′ x 11′
The building is close to transportation, shops, restaurants and the hub of downtown S.F.
Previous tenants have walked to work.
Walk Score gives the location 100 points (out of a possible 100 points.)
You will be living in a classic San Francisco neighborhood in a classic San Francisco building.
Photo of Coit Tower was shot from inside through the windows of the master bedroom.
Please, no smokers.
Sorry, no pets.
One year lease.
Rent-controlled.
Location
Very centrally located in the heart of historical North Beach. Walk to downtown San Francisco, Chinatown and the waterfront.
